来源:豆丁施工
版权归原作者所有


地下空间是城市的战略性空间资源,是新型国土资源。
北京、上海等城市地下空间开发利用取得了显著成效。

▲虹桥交通枢纽地下结构施工

▲上海轨道交通示意图

▲北京中关村西区地下结构施工

▲沈阳浑南新城地下城示意图
地下工程的发展趋势:网络化,深层化,立体化。
2005年7月,《北京市中心城中心地区地下空间开发利用规划2004年-2020年》:
浅层空间(-10米以上)
次浅层空间(-10至-30米)
次深层空间(-30至-50米)
深层空间(-50至-100米)等四层

《上海市总体规划》:在世博园、五角场、徐家汇、静安寺等一批重点地区地下空间的适度超前开发的经验基础上,鼓励与支持与超大规模、超深层次地下空间开发利用相匹配的系列重大关键技术。




变电站为全地下筒型结构,
地下建筑直径(外径)为62.4米,
地下结构埋置深度23.22米,
地墙深38米,
逆作法施工:


▲人民广场200KV世博地下变电站
变电站为全地下四层筒型结构,
地下建筑直径(外径)为130米,
地下结构埋置深度34米,
地墙深57.5米,
逆作法施工。



国外,浅层地下空间已基本利用完毕,开发逐步向深层发展。

▲日本福冈天神商业街

东京湾隧道川崎人工岛作为盾构工作井和隧道风井,采用地下连续墙围护,地下墙深度119m,壁厚2.8m ,圆形竖井直径103.6m,底板在海平面以下70m处。

▲东京湾隧道川崎人工岛

▲最大挖深50米的抓斗挖机

1、日本超深地下结构发展趋势:
1983年末,日本提出来要开发深层的地下空间,在地下50米以下的深度建造地下综合体。
2001年4月,部分城市实施“大深度地下利用法”,对距离地表40米或更深的深层地下空间开发进行政策导向。
日本超深地下空间建造领域:
超大断面盾构设备与掘进技术
深层地下空间的理论机理
深层地下空间建造技术
2、深层地下空间建造面临着巨大技术挑战:
1)理论研究深度不足。
2)现有建造技术相对落后。
3)深层地下空间建造经验匮乏。
4)信息化施工手段落后。



500kV静安(世博)输变电工程,
变电站为全地下四层筒型结构,
地下建筑直径(外径)为130米,
地下结构埋置深度约34米,
地墙深57.5米,
逆作法施工。


(1)紧邻建筑
山海关路侧:隔山海关路与本工程相对的是一、二层的老式民房;山海关路向西延伸段有规划地铁线路通过,地铁控制线距本基坑外边界最近点距离超过150m。
成都北路侧:成都北路中部为南北高架路,城市高架路下设置了桩基础。
(2)周边管线

(3)地质概况
拟建场地属滨海平原地貌,自地表至100m深度范围内所揭露的土层均为第四纪松散沉积物;地下水埋深一般0.5~1.0m;承压水分布于⑦土层和⑨层砂性土中;地下结构底板位于第⑦,层承压水层中。

(4)工程特点
采用框架剪力墙结构体系,其中主体结构外墙与内部风井隔墙构成主体结构的剪力墙体系,其余部分的内部结构为框架结构。地下四层,底板下设置抗拔桩;
地下连续墙:1200mm宽,墙顶标高-3.500m,墙底标高-57.500m,墙底注浆,墙外接头处采用高压旋喷桩止水;
工程桩:抗拔工程桩采用钻孔灌注桩,逆作支撑柱下桩采用一柱一桩和临时立柱桩两种型式;
逆作梁板结构:结构外墙为1200mm厚地下连续墙+800mm厚内衬墙的两墙合一结构,地下结构内部采用框架结构作为结构竖向受力体系,地下各层结构采用双向受力的交叉梁结构体系,本工程共四层,一~四层层高分别为9.5m、5m、10m及4.8m,在-7.00、-22.00及-30.30m处共设置3道环型混凝土支撑。
(5)工程难点
周边环境复杂、变形控制要求高;
超深地下连续墙,设备特殊、技术难度大:地墙厚1.2m,深度为57.5m,对成槽、槽壁稳定、垂直度控制1/600等控制难;
细长钻孔灌注桩及扩底桩技术控制要求高:细长型的超深钻孔桩均进入⑨1、⑨2中粗砂性层土中,其桩身的垂直度的控制(1/300),桩底的沉渣厚度(小于5cm)控制难;
顶板落深的超大型逆作法基坑施工难度大:地墙的顶标高地面低约3.5m,混凝土不浇筑至地面,导墙深度小,混凝土面与导墙底间高度内为原土;
超深逆作钢管立柱桩垂直度控制要求更高(1/600);
超深逆作施工中结构差异沉降控制更严格;
逆作清水混凝土结构体量大、构件特殊、质量要求高;
环形超长、大面积内衬钢筋混凝土裂缝控制要求高;
超深基坑降水及承压水处理复杂;
地下变电结构防水施工要求高。


1、超深地下连续墙施工技术
(1)工艺选型
地下连续墙两墙合一,地下连续墙墙厚为1200mm,深57.5m(穿透⑦2层,进入到⑧1层) ;
施工中采用抓~铣相结合的成槽施工工艺 ;
分别采用一台BC40液压铣一台MBC30液压铣和2台CCH500-3D真砂抓斗成槽机配套进行地连续墙成槽施工。

(2)垂直度控制
成槽机和铣槽机均应具有自动纠偏装置,可以实时监测偏斜情况,并且可以自动调整。
每一抓到底后(到砂层),用KODEN超声波测井仪检测成槽情况,如果抓斗在抓取上部粘土层过程中出现孔斜偏大的情况,可采用液压铣吊放慢铣纠偏。
(3)绕流控制
施工中拟采取在“H”型钢边缘包0.5mm厚铁皮,一期槽段空腔部分采用石子回填等措施防止混凝土绕流。
(4)槽壁稳定控制
调节泥浆比重,一般控制在1.18左右,并对每一批新制的泥浆进行泥浆的主要性能的测试;
地下连续墙外侧浅部采用水泥搅拌桩加固;
对于暗浜区,采用水泥搅拌桩将地下墙两侧土体进行加固,以保证在该范围内的槽壁稳定性;
控制成槽机掘进速度和铣槽进尺速度,施工过程中大型机械不得在槽段边缘频繁走动,泥浆应随着出土及时补入,保证泥浆液面在规定高度上,以防槽壁失稳。
(5)沉渣控制
施工中采用液压铣及泥浆净化系统联合进行清孔换浆,将液压铣铣削架逐渐下沉至槽底并保持铣轮旋转,铣削架底部的泥浆泵将槽底的泥浆输送至泥浆净化系统,由除砂器去除大颗粒钻碴后,进入旋流器分离泥浆中的细砂颗粒,然后进入预沉池、循环池,进入槽内用于换浆的泥浆均从鲜浆池供应,直至整个槽段充满新浆。
地下连续墙垂直度均小于1/600,达到了设计要求,成槽效果良好。
2、超深高压旋喷桩旋喷注浆施工技术
(1)加固设计概况
采用二重管高压旋喷桩进行防渗加固,高压旋喷桩采用42.5级普通硅酸盐水泥,桩径1000mm,旋喷桩与地下连续墙搭接300mm,旋喷桩标高范围-3.50~-49.50(其中砂层为(-37.20m~-49.50m)水泥掺入量650kg/m3(水泥:粉煤灰=1:0.3);最大加固深度达50m;
(2)加固设计概况
超深高压旋喷桩旋喷注浆中防止埋管施工技术;
超深高压旋喷桩旋喷注浆施工工艺。
3、超长钻孔灌注桩施工技术
(1)成孔工艺:正循环成孔
自然造浆护壁成孔,一、二次清孔(泵吸反循环清孔),导管水下混凝土灌注成桩工艺。整个工艺分成孔及成桩二大部分,成孔部分包括回转钻进成孔,泥浆护壁及一次清孔,成桩部分包括钢筋笼、导管安放、二次清孔、水下混凝土灌注。
(2)成孔控制
防斜梳齿钻头,既增加钻头工作的稳定性和刚度,又增加其钻头耐磨性能。该钻头可用于钻进N值50以上的较硬硬土层、带砾石的砂土层。钻头上面直接装置配重块,既保证钻头压力,又提高钻头工作稳定性和钻孔的垂直精度。
(3)清孔控制:泵系反循环清孔工艺
采用6BS泵吸反循环二次清孔,并在成孔过程中采用除砂器。清孔时入孔口的泥浆比重宜控制在1.20,粘度18~22°,钻进过程中采用除砂器保证浆内含砂率在4%范围内。泵吸反循环清孔应注意保证补浆充足与孔内泥浆液面稳定,使用时还应注意清孔强度以免造成孔底坍塌。


4、超长桩侧壁注浆技术
(1)工艺原理:
桩侧后注浆是目前即桩底注浆后新起的一种新的施工技术,它是在灌注桩成桩后,通过预埋在桩体不同部位处的特殊注浆器向桩侧注入水泥浆液,水泥浆液渗扩、挤密和劈裂进入土体,形成包围桩身横向及纵向一定范围强度较大的水泥土加固体,它不仅消除了附着桩表面泥皮的固有缺陷,改善了桩土界面,而且使桩侧一定范围的土体得到加固,土体强度增强,增大桩侧摩阻力,同时桩侧阻力因桩径扩大效应而增大,从而大幅度提高单桩抗压承载力和单桩竖向抗拔承载力。
(2)注浆设计:
沿桩长设置五道注浆断面,每道注浆断面注浆孔数量不少于四个,且应沿桩周均匀分布,每道断面水泥用量为P42.5新鲜普通硅酸盐水泥500kg,单桩水泥用量为2.5t。
五道压浆断面,压浆阀设置位置分别为-40.0m、-45.9m、-67.2m、-72.4m、-77.6m。


(3)技术措施:
后压浆质量控制采用注浆量和注浆压力双控方法,以水泥注入量控制为主,泵送终止压力控制为辅;
水泥采用P42.5水泥,注浆水灰比为0.6~0.7。桩侧压浆水泥用量为每道500kg,实施五道压浆,每道注浆孔数量不少于4个;
后压浆起始作业时间一般于成桩7天以后即可进行(清水劈裂时间一般在成桩后6-8小时),具体时间可视桩施工态势进行调整;
桩侧压浆压力不宜小于1.0MPa。当水泥压入量达到预定值的70%,而泵送压力已超过5.0MPa时可停止压浆。
5、一柱一桩施工技术
(1)一柱一桩概况:
一柱一桩桩身混凝土设计强度等级C35,有效桩长55.8m。一柱一桩桩身内插立柱钢管采用Φ550×16,钢材设计强度等级Q345B,内填混凝土设计强度等级C60(水下混凝土提高一级),钢管立柱中心定位偏差不大于10mm,垂直度要求为1/600(为保证钢管立柱底端的调垂空间,标高±0.00~-36.80m范围内采取扩孔形式,孔径为φ1200mm)。

(2)钢管立柱要求:
钢立柱进场需有质量合格证,进场使用前对外观尺寸及本身的垂直度平整度严格控制。钢立柱其本身质量的好坏将直接影响到监测系统监测数据的准确性。

(3)钢管立柱组装要求:
钢管构件组装应在工作平台胎模上进行,预对接后应有相应的固定措施和标记,以确保对接(焊接)的准确性和方便性 。


(4)钢管立柱吊装要求:
利用重心原理,在钢管柱顶端设计了专用吊耳与平衡器(吊点与铁扁担),以确保钢管柱在自由状态下保持垂直度。


(5)钢管立柱姿态调节:
最后采用地面调节系统调节钢管的垂直度,主要由地面定位架、横梁、10t千斤顶与5m校正杆组成;
钢管柱的顶标高在地面以下4m和3.5m处,为了便于地面调垂和固定将采用可拆卸工具管延长至地面约50cm;
可拆卸工具管采用与Φ550×16钢管立柱等截面钢管,工具管质量需严格控制,确保接管后钢立柱的垂直度、平整度等。以利于监测的准确性;
可拆卸工具管与钢管立柱采用法兰连接,连接件采用四根φ28直螺纹钢筋,并用φ48钢管延长至地面。



(6)地面定位架加工与设置 :
钢管定位架必须有足够的刚度,定位架采用10#槽钢或10#角钢加工而成。定位架设置顺序:桩位测量、放线→预埋件设置→护筒埋设、检验→定位架校正、固定。定位架制作完成后,应标注明显的中心线标记,中心线标记偏差≤2mm。钢管定位架铺设应根据定位架上中心线标记与地面桩位控制线为准,实际中心点累计偏差≤5mm。

6、超深地下空间逆作法取土技术
(1)施工分区 :
施工时共分为A、B、C、D、E、F、G七个区。A区面积为3600m2,B,D区面积为1100m2,C,E区面积为1200m2,F,G区面积为1600m2,总土方量为43万m3。

(2)开挖阶段划分 :
土方开挖共分八个阶段。
第一阶段:主要施工内容为第一层土开挖和B0板施工。
第二阶段:主要施工内容为第二层土开挖、单环支撑及夹层施工。
第三阶段:主要施工内容为第三层土开挖和B1板施工。
第四阶段:主要施工内容为第四层土开挖、B2板及B1板以上内衬墙施工。
第五阶段:主要施工内容为第五层土开挖、第一道双环支撑、夹层及B2板以上内衬墙施工。
第六阶段:主要施工内容为第六层土开挖和B3板施工。
第七阶段:主要施工内容为第七层土开挖、第二道双环支撑及B3板以上内衬墙施工。
第八阶段:主要施工内容为第八层土开挖和大底板施工。
(3)开挖流程 :
根据楼层和环形支撑的施工需要,每个阶段分七个层区进行开挖,具体开挖流程:A区 F、G区 D、E区B、C区;
挖土时应按“分层、分区、分块”的原则,利用土体“时空效应”的原理,限时、对称、平行开挖,取得了预期的效果。



7、超深基坑降水和承压水控制技术
(1)抽水试验 :
坑内降水设计方案是可行的,水位能降到最终开挖面以下;
坑内第⑦层抽水对坑外⑦层影响明显,坑内第⑦层抽水对基坑外⑧2层水位变化比较明显和特别,开始水位上升,最大上升0.64m,后又开始下降,最后下降达0.33m;
第⑦层土坑内外已经被地下连续墙隔断之间的水力联系,因此第⑦层降压疏干井以疏干坑内第⑦层水为主;
基坑内布置14口第⑦层降压井,另有2口兼作坑内观测井,井深46m,过滤器位置在基坑开挖面以下,即35m~45m;
在开挖前期,在基坑内设置疏干井群,疏干浅层地下水。疏干井群的平面布置按每300m2设置一口井考虑,同时浅层疏干井井深不超过第⑥层,井身长26.0m,滤管埋深4~25m,沉淀管埋深25~26m,坑内共布置32口。

8、大面积逆作清水混凝土施工技术
(1)环形超长、大面积内衬清水钢筋混凝土单侧支模模板技术,采用单侧模板体系;
如果外龙骨采用桁架支撑体系,需要具有比较大的刚度,从经济性以及可操作性均不是十分合理。故采用植筋的方式支设模板,模板体系面板采用黑木模板;
内龙骨布置间距为200mm,内龙骨材料型号为采用方木50×100mm。外龙骨间距500mm,最上的两道螺栓间距可适当调节,使第一道螺栓至墙顶距离不大于300mm;
外龙骨采用双拼Φ48×3.5钢管。对拉螺栓布置由下至上间距为150mm,500mm,500mm,500mm,500mm,600mm,800mm共7道,在跨度方向间距每500mm一道;
内衬墙对拉螺栓采用可拆防水型穿墙螺栓,螺栓外端采用植筋的方式植入地下连续墙体,局部焊接于地墙工字钢上,在对拉螺栓上焊接2道50×50×4止水钢板。


(2)环形超长、大面积内衬清水钢筋混凝土抗裂施工技术
为防止内衬墙混凝土产生收缩裂缝,提高内衬墙混凝土的抗裂性在混凝土中掺加超纤维,同时将每层的混凝土的划分为20个施工段,并在浇捣混凝土时间隔浇捣,以减小混凝土收缩应力的影响。
内衬施工阶段划分:
第一阶段:主要施工内容为B0、单环支撑、B1板结构施工完成后施工B0、单环支撑、B1板之间的内衬墙;
第二阶段:主要施工内容为B2板结构施工完成后施工B1、B2板之间的内衬墙;
第三阶段:主要施工内容为第一道双环支撑、B3板结构施工完成后施工B2、第一道双环支撑、B3板之间的内衬墙;
第四阶段:主要施工内容为第二道双环支撑、大底板结构施工完成后施工B3、第二道双环支撑、大底板之间的内衬墙。
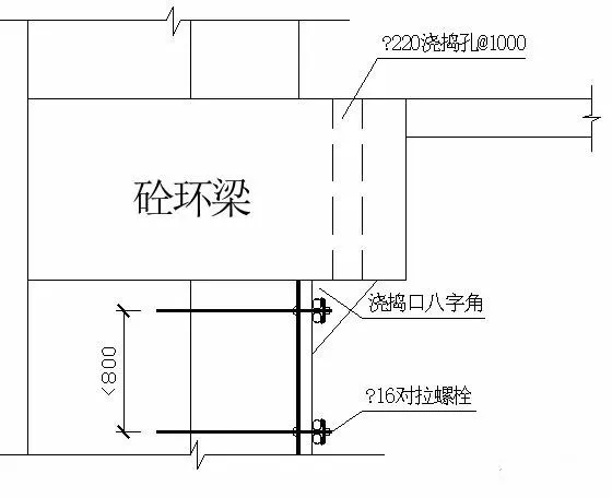
内衬墙逆作结构预留浇捣孔设置:在支撑环梁和结构层施工时,在内衬墙位置预留ф220浇捣孔,间距1500mm。

内衬墙施工缝的设置 :内衬墙每隔约20m设置一道施工缝,施工缝应设在一辐地墙的中心处,施工前根据此原则确定施工缝位置,将内衬墙成为20个块,依次编号1~20号。混凝土浇捣时分4次施工,第一次1,3,5,7,9号块混凝土浇捣,第二次11,13,15,17,19号块混凝土浇捣,第三次2,4,6,8,10号块混凝土浇捣,第四次12,14,16,18,20号块混凝土浇捣。两幅内衬墙施工缝应留设于地墙的中间位置,必须于地墙的施工缝错开。

混凝土浇捣技术:
在浇捣前,应先将地墙侧面凿毛,基底的泥土,垃圾清理干净,并用水冲洗;
对所有模板的制作、预留洞、预埋件的位置,必须确保无误,柱墙插铁位要准确,固定牢固。支撑稳定,整体性好;
混凝土应按设计要求控制好配合比,混凝土浇筑过程中,严禁加水,如发现加水现象,将严厉处罚,混凝土到现场后应做好塌落度试验,抗压或抗渗试块;
混凝土浇筑前应清除各种垃圾并浇水湿润,施工中严格控制施工节奏,杜绝冷缝出现。底板混凝土浇注采用商品混凝土泵送,水平输送混凝土采用硬管,布到所需位置,混凝土输送泵管随混凝土浇注速度,随时拆装;
钢筋密集处加强振捣,分区分界交接处要延伸振捣1.5m左右,确保混凝土外光内实,控制相对沉降;
混凝土浇捣前必须配置备用泵,没有备用泵严禁进行混凝土浇捣。
9、地下变电站结构防水施工技术
(1)地下连续墙防水技术
成槽采用铣削式成槽机和抓斗式成槽机相结合的工艺,确保地下连续墙的施工质量;
地下连续墙采用止水可靠性高的工字形刚性接头;
在地墙槽段分缝外侧设置品字型高压旋喷桩以提高接缝处抗渗能力。

在地墙接缝处刷水泥基结晶型防水涂料,地墙内侧增设了一道现浇的钢筋混凝土内衬墙,衬墙的设置增加了地下室外墙的有效厚度,有助于保证渗透稳定,消除了地下连续墙接缝处易渗漏的弱点。由于衬墙随开挖随施工,因此衬墙与地下室各层结构周边的环梁以及临时圆环支撑之间的交界面是防水的一道薄弱环节,因此环梁及圆环支撑施工时,其上下位置预留通长的刚性止水片和预埋注浆管,保证衬墙与圆环以及混凝土支撑之间的止水可靠性。

(2)大底板防水技术
底板后浇带部位加强层400mm宽二布五涂聚醚MDI型防水涂料:在防水层养护固化后,将底板施工缝的位置标明,在防水层表面,并以后浇带为中线,两侧各200mm范围内涂刷二布五涂聚醚MDI型防水涂料,厚度为5.5mm,施工方法同前。
桩头与底板连接处防水处理:桩头与底板连接处阴角用防水砂浆抹成半径为5cm 的凹圆角,二布五涂聚醚MDI型防水涂料应施工至桩头根部,并采用密封油膏密封,同时涂刷宽聚醚MDI防水厚浆涂料,作为封口,厚度为2.0mm,宽度为100mm,其中翻高50mm,在桩顶刷一层专用渗透涂料,最后在上部刷两层聚醚MDI防水厚浆涂料。

(3)大底板与地墙接触面
底板与地墙接触部位挖出600mm×300mm地沟;
在地墙300mm高度范围内用70mm厚防水砂浆粉刷,并将防水砂浆与底板垫层相交部位粉成半径为50mm的圆角,然后将垫层表面的防水卷材上翻至防水砂浆上部并用橡胶压条压紧;
底板与地墙之间的接触面设置了2道通长注浆管和2道通长遇水膨胀橡胶止水条。

(4)首层楼板防水技术

▲出顶板墙体防水节点
▲顶板周边防水节点
10、深基坑数字化技术
(1)深基坑工程基础数据的可视化与数字化技术
基本思路:深基坑地质条件、周边环境、基坑设计等基础数据进行可视化展现,并通过网络传递到工程技术人员的桌面计算机,使管理人员准确直观地了解深基坑工程建设过程。
①数据标准化,实现深基坑基础数据的通用化与标准化;
②三维建模,实现地上、地下及周边环境的三维可视化;
③数据可视化查询,通过三维模型即可查询和管理基础数据,达到真正的数据所见即所得;
④数据网络管理,实现随时随地能通过因特网对深基坑数据进行全面了解。

(2)深基坑施工安全远程自动化监控技术
基本思路:深基坑施工过程中的关键性安全指标(如基坑最大变形、支撑最大轴力)实现全自动采集,并经由GPRS网络全自动发送到监控系统。对于施工过程中的人工监测数据,建立Internet网络录入接口,及时将数据录入到监控系统中。这样管理人员就能通过网络随时随地掌握深基坑施工的关键性安全指标及监控量测数据。


(3)深基坑施工数字化分析技术
基本思路:在施工期数据全面集成、数字化管理的基础上,利用GIS技术和深基坑施工力学分析基本原理,开展数据可视化分析和力学分析,揭示深基坑施工过程对周边环境影响规律和发展趋势,使得施工安全控制和管理更加科学、有效、及时。
1)施工数据三维可视化分析技术
基于监测数据的施工影响范围可视化分析
施工影响区域内建构筑物影响程度可视化分析
施工过程中地表沉降及其与施工参数关系的可视化分析

2)基于数字模型的施工过程力学分析技术
施工过程数字化模型与数值分析模型一体化技术
施工过程荷载-结构法、地层-结构法力学分析集成技术
施工力学动态反馈与预测技术



上海500kV世博变电站工程

500kV大容量全地下变电站,工程建设规模列全国同类工程之首。为全地下四层筒型结构,地下建筑直径(外径)为130m,地下结构最大开挖深度约35.25m,基础底板埋深为34m,顶板落深为2m。
以上内容来源于网络收集整理,如有侵权请联系客服