来源:桥梁施工技术、网络
如有侵权请联系删除
钢筋加工流程:钢筋进场检验 → 钢筋加工 → 钢筋运输 → 钢筋安装
(1)、材料准备
① 按照工程进度要求,编制材料进场计划。
② 钢筋进场后,检查其牌号、等级、规格、生产厂家是否与合同相符,产品外观是否受损,并检查出厂质量合格证书和质量检验报告单。无合格证书和质量检验报告单的钢筋不予验收。
③ 钢筋进场验收后,按种类、型号、规格、等级及生产厂家分别堆存,不得混杂,并设立标志牌,钢筋堆存在仓库(棚)内,如钢筋露天堆置时,应垫高并加遮盖,防止淋雨锈蚀和其它污染,影响钢筋质量。
④ 及时对进场钢筋按规定抽检频率进行试验,并报请监理进行抽检,在材料标识牌上标明钢筋材料的检验状态,是否检验合格,严禁将不合格钢筋用于工程施工。
(2)、钢筋加工、安装
钢筋下料、制作在钢筋加工棚进行,运至预制场装配成型,钢筋下料前需将钢筋调直并清理污垢。钢筋连接采用搭接焊,钢筋下料时要适当配料,使之在成型焊接时接头能按规范要求错开设置。
严格按规范要求做好钢材的进货、下料、弯制、连接等工作。底板、腹板及隔板钢筋的绑扎直接在绑扎胎架上绑扎成型,整体吊装入模,待内模安装完毕后绑扎顶板钢筋。
在钢筋与模板间设置垫块,垫块应与钢筋扎紧,并互相错开,非焊接钢筋骨架的多层钢筋之间,应用短钢筋支垫,保证位置准确。钢筋混凝土保护层厚度应符合设计要求。普通钢筋采用在加工厂制作成型后,现场绑扎安装施工。在安装并调好底模及侧模后,沿底模纵向安放砼预制块,开始底板和腹板普通钢筋绑扎及预应力管道的预设,然后安装内模,再邦扎顶板钢筋及预应力管道。
钢筋绑扎要牢固,必要时,应用点焊焊牢,缺扣、松扣数量不得超过应绑扣数的20%。钢筋绑扎及焊接接头不应位于构件的最大弯矩处。主筋焊接接头最大面积不超过50%,绑扎不超过25%。
钢筋焊接时,焊工必须持证上岗。采用搭接焊双面焊接焊缝长度不应小于5d;单面焊接焊缝不应小于10d。钢筋焊接不允许出现焊瘤、气孔、夹渣、咬边、漏焊、烧伤、凹陷、裂缝等。
(1)、模板的制作
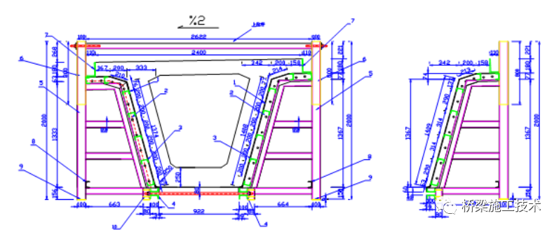
模板构造:箱梁外模板采用精制定型钢模,由专业厂家进行生产。一套箱梁模板由底模、侧模、内模、端模几部分组成,模板安装用10T龙门吊拼装。其中底模为活动刚性台座,按设计要求设置反拱。底模为砼台座,混凝土面上铺设5mm钢板作为箱梁预制底模,跨中要预留反拱,模板拼装时注意模板之间的连接牢固、平整、接缝等。外模面板使用6mm钢板,内模面板使用5mm钢板。
模板进场后对其进行验收合格后方可投入使用。
模板结构见下图:

箱梁侧模模板结构图

箱梁内模模板结构图
(2)、模板的施工
立模:拼装外模时用10T龙门吊把外模分块模板吊到所要制梁的制作台,顺序不能颠倒。先拼边模,然后拼端头部分。拼两边模时先用对拉螺杆将模板基本固定好,再拼两端吊装孔及三角垫块,拼三角垫块必须采用1m水平尺或水准仪抄平,控制其高度误差不大于±2mm,而后拼装端头模。拼完后对边模的水平、接缝以及模隔板模进一步调整,位置准确后固定对拉螺杆。内模预先分几节拼好,待底、腹板钢筋安装到位后用10T龙门吊吊进箱内进行拼接,拼出的内模应平整、无坑洼、无翘曲现象、接缝严密。内模拼装好后装上限位槽钢,以免上浮。
模板的安装质量标准如下:
序号 | 项 目 | 允许偏差(mm) | 检验方法 |
1 | 轴线位置 | 8 | 尺量每边不少于2处 |
2 | 表面平整度 | 5 | 2m靠尺和塞尺不少于3处 |
3 | 高程 | ±10 | 测量 |
4 | 模板尺寸 | ±20 | 尺量不少于3处 |
5 | 相邻两板表面高低差 | 2 | 尺量 |
拆模:拆外模时,首先拆出端头模板及端隔板模板及中隔板堵头模,然后松对拉螺杆和两边支撑,拆除两边侧模,因为模板属大面、小厚度钢结构,侧向刚度不大,所以在拆除、起吊等作业时应防止模板发生塑性变形。内模拆除先将先拆板用拆模器拆除,解除了内模的环状构造后依次将内模拆完。。
模板拆除后,放置在平整的场地上,及时对模板进行校正,对面板进行打磨,然后涂抹脱模剂,涂抹完成后用棉纱轻抹一次,使脱模剂均匀,脱模剂涂抹完成后用塑料薄膜对模板进行覆盖。
预应力管道的位置按设计要求准确布设,在曲线部分每隔50cm、直线段每隔100cm布置一道定位筋进行固定,负弯矩钢束的定位筋每隔100cm设置一组,接头要平顺,外用胶布缠牢,在管道的最高点设置排气孔。同时将锚垫板牢固的安装在模板上,并与孔道对中,与孔道端部垂直,不得错位。预应力筋穿束前对孔道进行清理,穿束采用人工从一端送入或用金属网法。浇筑砼前,对铺垫上的压浆孔进行封堵,防止浇筑砼时漏浆堵孔。
波纹管在安装前应通过作灌水试验,以检查有无渗漏现象,确无变形、渗漏现象时方可使用。
因孔道较长且带弧度,采用两根波纹管接头,从两端穿入,中间连接采用大一号型的波纹管。接头管的长度为200mm,其两端用密封胶带封裹,安装时,应事先按设计图中预应力筋的曲线坐标在箍筋上定出曲线位置,固定时应采用钢筋支托,间距为500mm。钢筋支托焊在箍筋上,箍筋底部垫实。波纹管固定后,用铁丝扎牢,以防浇筑混凝土时螺旋上浮而引起严重的质量事故。
波纹管安装后,检查其位置、曲线形状是否符合设计要求,接头是否牢靠,完好,同时在波纹管管中穿硬质PVC管作为内衬管确保在浇注混凝土时保证波纹管不破损、不堵管。
(1)、混凝土浇筑前的准备
混凝土拌和前先由工地试验室测定砂石材料的天然含水量,依据测定的含水量及监理工程师批复的配合比计算出每盘料的施工配合比,在配合比标识牌上注明每盘料的水泥、砂、各种规格的碎石、水的质量,然后采用电子自动计量进料、准确的计量砂、石材料,以保证混凝土的质量。
混凝土浇筑前,检查模板加固情况、预埋件位置等,还应落实混凝土浇筑材料、机械设备准备情况。混凝土采用自拌混凝土,25t汽车吊配合吊斗浇筑。
(2)、混凝土的浇筑、振捣
钢筋和模板安装完毕,经自检合格、监理工程师检查验收并签认后进行混凝土的浇筑施工。浇筑到顶后及时整平、收浆。
A、浇注顺序:底板混凝土浇注→腹板混凝土浇注→顶板混凝土浇注。
B、浇注混凝土施工:混凝土用混凝土搅拌运输车运到预制厂,由10T龙门吊吊料斗入模。
浇注底板时,应从跨中向两端浇注,采用插入式振动器与平板式振动器捣实整平。使用插入式振动器振捣。使用插入式振动器时,移动间距不应超过振动器作用半径的1.5倍;与侧模应保持50~100mm的距离;插入下层混凝土50~100mm;每一处振动完毕后应边振动边徐徐提出振动棒;应避免振动棒碰撞模板,预应力钢筋和其他预埋件。
根据梁高腹板砼分成2~4层进行浇注,采用装在侧模上的附着式振动器和插入式振动器振捣,振动器应插入上一层顶面5~10cm以保证层间良好的连接,插入式与附着式振动器应同步进行,即振动棒在哪里振捣就开哪里的附着式振动器。腹板浇注时应两侧同步进行,严禁用振动棒使混凝土在腹板内做长距离流动。进行顶板混凝土浇注,上料方式是直接将料倒在顶板上,自由倾落距离不大于30cm,顶板由平板式和插入式联合捣固。先用插入式振动器捣实,然后用平板振动器拖平,最后用抹子抹平,使梁顶面平整。
箱梁混凝土浇筑应一次完成,为使桥面铺装与预制箱梁紧密地结合为整体,预制箱梁顶面必须拉毛,混凝土终凝后立即用高压水冲净表面灰浆。
在混凝土浇筑过程中安排专人察看模板的支撑、接缝、拉杆等情况,检查是否漏浆,是否跑模,发现问题及时处理,将质量事故消灭在萌芽状态,在混凝土浇筑过程中应按照规范要求频率根据监理工程师的要求或随机制作混凝土试件。
(3)、混凝土养生
混凝土浇筑完成后,进行覆盖养护,夏季采取自动喷淋养生,冬季采用蒸汽养护。
(1)、 预应力材料的选择及制作
箱梁预应力钢筋采用高强度低松弛φj15.24mm钢绞线,其技术性能应符合(GB/T5224-1995)标准,其力学性能如下:Rby=1860Mpa,预应力筋张拉采用预应力张拉智能控制系统进行预应力施工。普通钢筋采用Ⅰ级、Ⅱ级钢筋,其性能必须符合现行国家标准。
钢绞线表面不得带有降低钢绞线与砼粘结力的润滑剂、油渍等物质,允许有轻微的浮锈,但不得锈蚀成肉眼可见的麻坑。
预应力筋进场时应分批验收,验收时,除应对其质量证明书、包装、标志和规格等进行检查外,尚须按下列规定进行检验。
从每批钢绞线中任取3盘,并从每盘所选的钢绞线端部正常部位截取一根试样进行表面质量,直径偏差和力学性能试验。如每批少于3盘,则应逐盘取样进行上述试验。试验结果如有一项不合格时,则不合格盘报废,并再从该批未试验过的钢绞线中取双倍数量的试样进行该不合格项的复验,如仍有一项不合格,则该批钢绞线为不合格。每批钢绞线的重量应不大于60t。
● 预应力材料的保护
预应力材料必须保持清洁,在存放和搬迁过程中应避免机械损伤和有害的锈蚀。如进场后需长时间存放时,必须安排定期的外观检查。
预应力筋在仓库内保管时,仓库应干燥、防潮、通风良好,无腐蚀气体和介质;在室外存放时,时间不宜过长,不得直接堆放在地面上,必须采取垫以枕木和进行覆盖等有效措施,防止雨露和各种腐蚀性气体,介质的影响。
锚具、夹具和连接器均应设专人保管。存放、搬迁时均应妥善保护,避免锈蚀、沾污,遭受机械损伤或散失。临时性的防护措施应不影响安装操作的效果和永久性防锈措施的实施。
● 预应力筋下料
预应力筋的下料长度应通过计算确定,计算时应考虑,锚夹具厚度,千斤顶长度,弹性回缩值,张拉伸长值和外露长度等因素。
(2)、施加预应力
● 机具及设备
本工程根据甘肃省交通基建工程质量监督站的要求,采用桥梁预应力张拉智能控制系统进行箱梁的预应力施工。
桥梁预应力张拉智能控制系统主要组成部分有:智能张拉系统平台、LZ-5901智能张拉仪和专用千斤顶组成。
智能张拉系统操作简单,界面人性化,适应各种施工场地环境。借助智能张拉系统,可以自动读取梁板参数,智能计算张拉过程的压力值,无线控制油泵的进退油,实时无线采集油压与位移信息,自动生成预应力张拉记录表等功能。全程无需人工干预,且具有错误纠正、数据同步、张拉申核等张拉过程控制,核心是在预应力张拉控制和施工技术总结的基础上,通过计算机来控制张拉施工过程,完全改变了传统的通过人工来操纵油泵进行张拉操作,真正地实现了张拉的同步性控制。

LZ-5901智能张拉系统、专用千斤顶
施加预应力所用的智能控制系统设备应由专人使用和管理,并应定期维护和校验。预应力施工前,应核对主机和专用千斤顶的编号。主机和千斤顶都在出厂前统一标定,使用时一定要注意一一对应。使用期间的校验期限应视机具设备的情况确定,当千斤顶使用超过6个月或300次或在使用过程中出现不正常现象或检修以后应重新校验。
● 施加预应力的准备工作
1、核对主机和专用千斤顶的编号,由于主机和千斤顶都在出厂前统一标定,使用时一定要注意一一对应。
2、设备控制站选择在待张拉梁板侧面,要求不影响现场施工、控制站能安全工作,无阳光直射,在张拉过程中无需移动就能方便看到梁板的两端,能连接到220V电源,取消电脑的屏幕保护,自动关闭硬盘等功能,安装好控制软件。将张拉仪主机和专用千斤顶一一对应的布置于梁板的两端,并且都能和控制站保持直线可视状态。
3、确保控制站、两端的张拉仪主机、被张拉梁板的周围无强磁场、电场(即梁板的周围20m范围内无电焊等大型电磁场施工设备作业)。否则会影响无线通信信号,严重者会出现打死现象。遇到这样的情况,可以断开、重连电源,重新进行信号连接。
4、由专业电工连接好三相四线(仪器红、绿、黄三根粗线为火线,蓝线为零线)。
5、仔细检查油嘴及快接头是否有杂质,必须将其擦拭干净;仔细检查进油管与回油管是否被混淆。回油管安装在张拉时候远离梁板的一端。
6、安装位移传感器。在千斤顶起吊之前,先将两个卡口卡入位移传感器,再用螺丝固定。确保位移传感器的大小螺丝均已拧紧。在移动千斤顶的时候,切不可用手用力扯动传感器及其连接线。保证传感器与导向杆平行安装,传感器伸缩杆伸缩自然,千斤顶必须采用钢丝绳起吊,起吊之后,连接位移传感器数据线。
7、操作人员对上述所有项目进行逐一检查,确保张拉系统安装符合要求。
8、确保设备电源已经接通,但是电机处于关闭状态。接通设备电源,此时有且仅有“停止按钮”的红色指示灯被点亮。
a、启动笔记本电脑,连接好无线网关,启动控制软件;按照工程实际情况填写好工程概况和张拉梁板的工程信息。
b、单击“启动张拉程序”,进入“张拉施工控制”界面,此时系统会自动连接设备。只有在设备通讯都正常的情况下,软件才会弹出“张拉梁参数设置”界面,同时在软件的左下角状态栏中显示“张拉仪器连接成功”方可进入下一步操作。如果设备连接不正常,请仔细检查设备电源或确认是否设备天线连接正常,或确认网关是否损坏,必须排除故障才可继续操作;
9、关闭“张拉梁参数设置”界面,点击“启动调试”,如果位移线和压力线不是水平顺直移动,应查找原因,一般如果位移读数为负数,说明位移连接线可能有故障,如果位移线突上突下,说明传感器可能受潮;轻摇位移传感器伸缩杆,如果电脑读数随之改变,证明连线正常,方可开始张拉,随后点击“停止调试”;点击“手动控制”,对1号机和2号机分别点击“进油”、“退油”,观察对应的红、绿等是否闪亮,红灯对应进油,绿灯对应回油,并记录1号机和2号机位置,此时可以对其进行标识,并为参数计算填写准备。
10、单击“显示参数”,弹出“张拉梁参数设置”界面,按照张拉程序填写参数。
张拉油压值计算:
设标定公式为y=ax+b(其中y表示油压值,a为标定公式中的系数,x为应力值,b为修正值)
注意:每填写一个“张拉步骤”都需要单击“保存步骤”。
参数填写错误会造成严重张拉事故,必须反复检查,切勿出错。
填写完“张拉梁参数设置”中的参数后,单击“确定”,完成参数设置工作。
11、控制软件回到主界面,检查软件左下角的状态栏,显示正常,右上角的“张拉梁号”正确,“第1次”张拉为准备状态。
● 张 拉
1、箱梁混凝土强度达到90%以上设计强度时方可张拉钢束,施工时按设计要求对钢束的束号顺序横向对称张拉,采用两端张拉。
2、检查确定梁板的两端千斤顶安装正确,然后启动梁板两端设备(按下绿色控制按钮),启动设备,电机运转声音正常,平顺。如果指示灯点亮但是出现闪亮,说明三相四线缺相,启动设备,电机运转,但是声音很响转动不平顺,此时应立即关闭设备,避免电机烧坏。重新检查线路,必须完全正确后才可以继续操作。
3、启动张拉智能平台系统后,现场操作人员、监理员现场摄像智能张拉平台系统发出信号,传递给LZ-5901智能张拉仪张拉系统,通过张拉系统控制专用千斤顶按预先系统编制的张拉顺序进行对称均衡张拉;
4、通知梁板两边工作人员,注意安全。点击控制软件的“开始张拉”按键,“第1次张拉施工”启动,此时密切注意在电脑上观测压力值和位移值是否正常,有异常立即点击“暂停张拉”并进行相关检查。电脑在张拉施工过程中严禁运行其他程序,操作人员时刻关注相关数值,严禁离开控制台。
5、在张拉过程中应密切注意梁板两端设备和千斤顶的工作情况,注意安全,如有异常情况立即单击“暂停张拉”或按下张拉仪“停止按钮”,停止张拉,排除异常情况后,方可继续张拉。
6、每一孔张拉完成后,设备自动退顶,保存数据,并自动跳到下一个张拉步骤,在下一个张拉步骤开始之前,计算机操作人员应再次检查锚具、千斤顶、限位板是否正确嵌套,传感器螺丝是否拧紧,千斤顶是否压迫粗钢筋,位移传感器连接是否松动,等等。确保无误后方可张拉。
7、油泵供油给千斤顶张拉油缸,按五级加载过程依次上升油压,分级方式为10%(初应力即计算伸长值的起点),20%、40%、60%、80%、100%。
8、张拉过程中智能张拉平台系统对每一级进行测量和记录,测量每一级张拉后的活塞伸长值的读数,并随时检查伸长值与计算值的偏差。
9、张拉时,通过智能张拉系统平台和LZ-5901智能张拉系统控制好专用千斤顶加载速度,确保给油平稳,持荷稳定。
10、张拉过程中,系统将自动校核测量数据,当实际伸长值与理论伸长值相差大于正负6%时系统将自动报警,停止张拉。待查明原因,排除问题后,方可进行下一步的工作。
11、待梁板张拉施工完成后关闭依次关闭软件、电机、切断电源,拆卸千斤顶、油管,擦拭设备和配件,妥善保管。
12、张拉结束:必须取下位移传感器,放入工具箱保存;必须确保张拉仪有良好的防雨防晒措施。
● 压 浆
预应力张拉完毕后应尽快压浆。压浆前应用压缩空气或高压水清洗管道内杂质。压浆自一端压入至另一端饱满出浆为止。
压浆用水泥采用普硅42.5水泥,要求水泥细度高,流动性好,初凝最快不小于5小时,终凝不大于24小时。水胶比采用0.26~0.28(加入减水剂和水泥用量0.01%的铝粉),其初始流动度为10s~17s之间。
压浆采用真空压浆工艺,真空泵应能达到0.1Mpa的负压力。
● 封 锚
压浆后应按图纸设计进行梁体封锚,梁体封端处砼表面应凿毛,表面上的灰碴和支承板、支座板上的浮浆应全部清除干净。待封锚混凝土强度达到设计要求后方可吊运至存梁区进行存放。
用60T龙门吊吊起后运行到存梁场存梁。
A、起吊:在制梁台上进行起吊,穿钢丝绳时注意钢丝绳要顺直,排列整齐,不得出现挤压、弯死现象,以免钢丝绳受力不均而挤绳,预制梁时在梁底预留吊装孔,在梁底与起吊绳的接触处设置专用的铁鞋将梁底混凝土与钢丝绳隔离,以免挤碎混凝土或割断钢丝绳,其他接触处也应有防止割断钢丝绳的措施,如垫木板、橡胶皮、麻袋条等,起吊钢丝绳的保险系数应达到10倍并经常检查,起吊时,吊起20~30cm后,要检查各部位有无不正常变化,确认情况良好且无障碍物、挂拌物后,方可继续提升,一般起吊高度不超过50cm,前后高差不得超过2%。
B、行走:龙门吊应慢速行走。作业人员应统一口令,司机仅按照指挥人员的信号进行操作,司机必须头脑清醒,熟悉操作规程,龙门吊四个角设专人看护,两侧至少备有两个铁鞋和三角木。
C、存梁:按编号有规划地存放,以方便架梁时取梁。所有梁片均双层存放,在梁的两头设置牢固的存放支座,使梁处在简支状态下保存,不得将梁直接放在地上,以防止地面不平引起梁片上部受拉而使梁上部产生裂缝甚至断裂。做好存梁区的排水工作,防止地表水冲刷存梁地面引起下沉。
以上内容来源于网络收集整理,如有侵权请联系客服