来源:西南交通大学课件

如有侵权,请联系删除


一、基坑工程的特点


(1)临时结构:安全储备小,风险较大。
(2)区域性和个案性较强。
(3)综合性很强的系统工程:工程地质、岩土、结构、环境。
(4)综合性岩土工程问题:强度、稳定性、变形、渗流。
(5)设计与施工需考虑时空效应。
(6)与周边环境关系密切,对其影响较大。


二、基坑的分类及方案选择


1.2.1  按支护结构形式分类

1)水泥土重力式围护墙

2)土钉墙支护结构

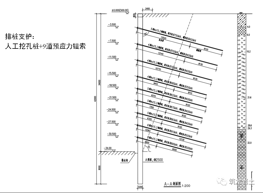
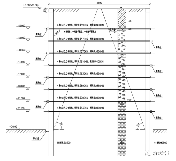
3)排桩支护结构

4)地下连续墙

5)地下连续墙+逆作内衬


1.2.2 支护结构与主体结构结合及逆作法


1.2.3 各类支护方式的适用条件

以上内容来源于网络收集整理,如有侵权请联系客服