来源:网络
模板的计算
一、根据混凝土量快速估算模板用量
1、适用情况:一般用于工程开工前期,在已知混凝土用量的情况下估算模板用量,以初步估算工程周转材料成本投入数量,为筹措资金提供依据。
2、优缺点:
优点:速度快,简便节约计算时间。
缺点:模板用量计算结果不够精确。
(一)各种截面柱模板用量
1、正方形截面柱 其边长为a×a时,每立方米混凝土模板用量U1按下式计算:U1=4/a
2、圆形截面柱 其直径为d时,每立方米混凝土模板用量U2按下式计算:U2=4/d
3、矩形截面柱 其截面为a×b时,每立方米混凝土模板用量U3按下式计算:U3=2(a+b)/ab
(二)主梁和次梁模板用量
钢筋混凝土主梁和次梁,每立方米混凝土的模板用量U4按下式计算:U4=(2h+b)/bh
式中b——主梁或次梁的宽度(m)
式中h——主梁或次梁的高度(m)
(三)楼板模板用量
钢筋混凝土楼板,每立方米混凝土模板用量U5按下式计算:U5=1/h
式中h——楼板的厚度。
(四)墙模板用量计算
混凝土和钢筋混凝土墙,每立方米混凝土模板用量U6按下式计算:U6=2/d
式中d——墙体的厚度。
二、按照混凝土构件与混凝土的接触面展开的办法精确计算模板工程量。
1、适用范围:常用于成本核算,及班组工程款结算。
2、优点:数据准确
缺点:计算过程繁琐,占用时间较长,受计算者个人水平影响较大。
方木的计算
快速估算法
每平方米模板方木(50×100)用量V:
V=0.0333(m³)
对拉螺栓长度计算
4.5m以下墙体对拉螺栓长度计算

4.5m以上墙体对拉螺栓长度计算

4.5米以下高度墙体对拉螺栓长度计算:墙厚+2×18(模板厚)+2×95(方木厚)+2×51(水平钢管外径尺寸)+2×(50~75)(钢管两边预留长度)
4.5米以上高度墙体对拉螺栓长度计算: 墙厚+2×18(模板厚)+2×95(方木厚)+2×51(水平钢管外径尺寸)+2×51(竖向钢管外径尺寸)+2×(50~75)(钢管两边预留长度)
对拉螺栓数量的计算
1、墙体对拉螺栓
a、止水型对拉螺栓个数=(墙体长度÷对拉螺栓水平间距+1)×[(墙体高度-150)÷对拉螺栓竖直间距+1]
b、周转型对拉螺栓个数={(墙体长度÷对拉螺栓水平间距+1)×[(墙体高度-150)÷对拉螺栓竖直间距+1]} ×1.05
注:其中1.05为周转型对拉螺栓的损耗
2、柱对拉螺栓
柱对拉螺栓个数计算方法根据实际柱截面尺寸及施工方案进行计算
钢管的计算
一、柱模钢管用量的计算
柱净高:基础顶面或楼面至上层梁底的高度
柱箍间距:指同向相邻两排加固柱箍钢管组合中心距

柱模加固杆长度=柱子截面尺寸(b或h)+2×模板厚度+2 ×方木高度+2×自由端长度(一般取200~500)
柱模加固杆根数(b方向)=[(柱子净高-300)÷柱箍间距+1]×4
柱模加固杆根数(h方向)=[(柱子净高-300)÷柱箍间距+1]×4
柱子与结构脚手架连接钢管长度及数量
柱模加固杆数量=柱模加固杆长度(b方向)×柱模加固杆根数+柱模加固杆长度(h方向) × 柱模加固杆根数+柱子与结构脚手架连接钢管
报工程量注意事项:
1、分规格报量
2、按钢管长度模数确定钢管长度规格

二、普通高度墙体钢管用量计算
墙体净高度:基础顶面或结构楼面到上层梁或板底的高度。
普通高度墙体(4.5m以下)加固体系一般由模板、方木、水平方向钢管加固杆、山形卡、丝帽等组成,其模板侧压力传递顺序如下:模板→方木→水平方向加固钢管→山形卡→对拉螺栓。
由于墙体高度不大(4.5m以下),一般方木间距取150~200,对拉螺栓间距3.0米以下高度取450×450,3米以上可适当加大至500~600。
墙体水平加固杆长度=墙体中心长度+2个模板厚度+2个方木高度+2×钢管自由端长度(一般取200~500)。
墙体水平加固杆根数=[(墙体净高度-300)÷对拉螺栓竖向间距+1]×4。
墙体水平加固杆总量=墙体水平加固杆长度×墙体水平加固杆根数
剪力墙端锁口杆长度=墙体厚度+2倍模板厚度+2倍方木高度+2倍自由端长度。
剪力墙端锁口杆根数=剪力墙净高度÷对拉螺栓竖向间距。
剪力墙端锁口杆总量=剪力墙端锁口杆长度×根数
墙体加固钢管的总量=水平向加固杆总量+剪力墙端锁口钢管总量。


三、超高墙体加固钢管的计算
超高墙体加固体系一般由模板、方木、水平方向钢管加固杆、竖直方向加固杆、山形卡、丝帽等组成,其模板侧压力传递顺序如下:模板→方木→水平方向加固钢管→竖起方向加固杆→山形卡→对拉螺栓。
由于墙体高度较大(4.5m以上),一般方木间距取150,对拉螺栓间距取450×450。
墙体水平加固杆总量计算方法同普通高度墙体水平加固杆计算方法。
墙体立杆长度分两种,当剪力墙为内墙时剪力墙两侧立杆高度相同=楼面(或基础顶面)到板底的距离-板底模板厚度-100~150;当剪力墙为外墙时内外两侧立杆高度分别为:外侧墻体立杆高度=墙体高度(楼面或基础顶面至墙顶的高度)内侧墙体立杆=楼面(或基础顶面)到板底的距离-板底模板厚度-100~150

竖向加固杆总量=(墙体长度÷对拉螺栓水平间距+1)×内侧立杆的高度×2+ (墻体长度÷对拉螺栓水平间距+1)×外侧立杆的高度×2。
剪力墙端锁口杆长度=墙体厚度+2倍模板厚度+2倍方木高度+2倍自由端长度。
剪力墙端锁口杆根数=剪力墙净高度÷对拉螺栓竖向间距。
剪力墙端锁口杆总量=剪力墙端锁口杆长度×根数
超高墙体加固钢管的总量=水平向加固杆问题+竖向加固杆总量+剪力墙端锁口钢管总量。
报工程量需注意事项:
1、竖向加固杆长度计算时,外侧立杆高度可根据实际情况确定高度,确定高度需考虑选用常用模数长度。
2、剪力墙端锁口钢管长度选择时也应考虑选用常用模数长度。
3、报工程量时应分清钢管长度规格,并尽量减少钢管长度种类。

四、梁模板钢管用量计算
梁底平杆的计算
1、梁底平杆的长度;
2、梁底平杆的根数;
3、梁底平杆的用量;
梁侧模加固杆
1、当梁截面高度为500时,一般情况下侧模高度将达到350~400,如不对梁侧模进行加固,仅凭梁侧模顶部与板模板的连接,承受不了在浇筑混凝土时振动棒的振动给模板带来的侧压力,容易形成梁侧模变形,炸边等质量缺陷。
梁底立杆及其他杆件的计算
1、普通梁底立杆的用量在计算结构脚手架时已经计算,可单独不计算。
2、框支梁或转换层梁底立杆的用量应根据通过计算的施工方案所确定的立杆间距、水平杆步距及剪刀撑的具体数据进行计算。
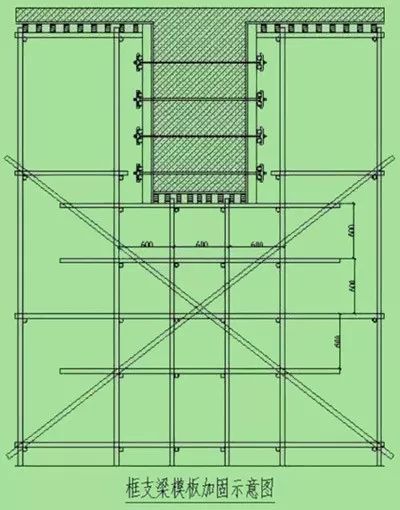
3、转换层梁加固钢管用量计算示例:(见下图)
(1)立杆(具体计算方法略)
(2)水平杆(具体计算方法略)
(3)剪刀撑(具体计算方法略)

五、模板支架钢管用量计算
立杆
1、立杆高度=层高-楼面板厚-模板厚度-30~50mm
2、立杆根数=X方向根楼×Y方向根数
X方向根数=X方向结构楼面长度÷立杆X向间距+1
Y方向根数=Y方向结构楼面长度÷立杆Y向间距+1
3、立杆总量=立杆高度×立杆根数+其他特殊部位立杆根数×该特殊部位立杆高度
4、说明:
(1)当结构楼面形状不规则时,应以实际需要设定或计算其根数和长度。
(2)当结构层高为非常见层高时,在选用钢管长度规格时应考虑相近钢管长度+可调底座的形式。
水平杆
1、需了解知识点:扫地杆定义、立杆步距定义及纵、横向水平杆的定义。
2、纵(横)向水平杆根数=纵(横向)向结构楼面长度÷立杆纵(横)距+1。
3、纵(横)向水平杆长度≈纵(横)向结构楼面长度。
4、单步架纵(横)向水平杆总量=纵(横)向水平杆根数×纵(横)向水平杆长度。
5、水平杆层数=楼层净高÷立杆步距+1
6、水平钢管总用量=(单步架纵向水平杆总量+单步架横向水平杆总量) ×水平杆层数+其他部位水平钢管用量。
剪刀撑
1、建筑施工扣件式钢管脚手架安全技术规范(JGJ 130-2001)关于剪刀撑布置的相关规定:
(1)满堂模板支架四边与中间每隔四排支架立杆应设置一道纵向剪刀撑,由底至顶连续设置;
(2)高于4米的模板支架其两端与中间每隔4排立杆从顶层开始向下每隔2步设置一道水平剪刀撑。
2、剪刀撑钢管的长度应根据实际搭设的角度及楼层高度来计算。
3、剪刀撑钢管一般为对称双向布置,计算剪刀撑钢管根数时应注意。
外墙脚手架搭设相关要求
1、纵向水平杆宜设置在立杆内侧,其长度不宜小于3跨;
2、纵向水平杆拉长宜用对接扣件连接,也可采用搭接;
3、主节点处必须设置一根横向水平杆,用直角扣件扣接且严禁拆除;
4、作业层上非主节点处的横向水平杆,宜根据支承脚手板的需要等间距设置,最大间距不应大于纵距的1/2;
5、当使用冲压钢脚手板、木脚手板、竹串片脚手板时,双排脚手架的横向水平杆两端应采用直角扣件固定在纵向水平杆上;单排脚手架横向水平杆的一端,应用直角扣件固定在纵向水平杆上,另一端插入墙内,插入长度不小于180mm。
需掌握的几个术语
1、防滑扣件:根据抗滑要求增设的非连接用途扣件。
2、外立杆:双排脚手架中离开墙体一侧的立杆,或单排架立杆。
3、内立杆:双排脚手架中贴近墙体一侧的立杆。
4、主节点:立杆、纵向水平杆、横向水平杆三杆紧靠的扣接点。
5、立杆步距:上下水平杆之间的轴线距离。
6、立杆间距:脚手架相邻立杆之间的轴线距离。
7、立杆纵距:脚手架立杆的纵向间距。
8、立杆横距:脚手架立杆的横向间距,单排脚手架为外立杆轴线至墙面的距离。
9、扫地杆:贴近地面,连接立杆根部的水平杆
六、外架钢管的计算
1、立杆
(1)外立杆高度=室外地面高度(或悬挑钢梁上表面)至檐口高度(女儿墙顶)+1.2
(2)内立杆高度=室外地面高度(或悬挑钢梁上表面)至檐口高度(女儿墙顶)
(3)立杆根数=外架外围周长÷立杆间距
(4)立杆长度=外排立杆根数×外排立杆高度+内排立杆根数×内排立杆高度
2、大横杆(沿脚手架纵向布置的水平杆)
(1)大横杆长度=外架外围长度
(2)外排大横杆数量=脚手架高度÷步距(上下水平轴线间的距离)+1
(3)内排大横杆数量=脚手架高度÷步距(上下水平轴线间的距离)
(4)大横杆总量=大横杆长度×大横杆数量(内排数量+外排数量)
3、小横杆(沿脚手架横向布置的水平杆)
(1)小横杆长度=小横杆靠墙一端到装饰墙面的距离(一般不大于100mm)+一个脚手板的宽度+立杆横距+一个钢管外径+小横杆伸出扣件边缘的长度(一般取100mm)。
例:以常用的立杆横距为1.05米的外脚手架为例,小横杆长度=100+300+1050+51+100=1601
(2)小横杆数量(主节点部位)=外架外围周长÷外立杆纵距×(外架高度÷立杆步距+1)
(3)小横数量(非主节点部位)按脚手架施工方案确定的每隔n步架满铺脚手板算出需要满铺脚手架的层数,再按每层主节点数量的一半计算小横杆根数。
(4)小横杆总量=小横杆总根数×小横杆长度
4、剪刀撑
(1)规范关于剪刀撑的规定:
高度在24米以下的单、双排脚手架,均必须在外侧立面的两端各设置一道剪刀撑,并应由底至顶连续设置;
高度在24米以上的双排脚手架应在外侧立面整个长度和高度上连续设置剪刀撑;
剪刀撑的接长宜采用搭接,搭接长度应符合规定
每道剪刀撑宽度不应小于4跨,且不应小于6米,斜杆与地面的倾角宜在45度~60度之间。
(2)长度计算,根据施工方案确定的设置位置和形式及高度进行计算。
5、横向斜撑
(1)规范关于横向斜撑的规定:
a 横向斜撑应同一节内由底至顶层呈之字形连续布置;
b 一字型、开口型双排脚手架的两端必须设置横向斜撑;
c 高度在24米以下的封闭型双排脚手架可不设置横向斜撑,高度在24米以上的封闭型脚手架,除拐角应设置横向斜撑外,中间应每隔6跨设置一道。
(2)横向斜撑钢管用量的计算:
a 根据规范要求或外架施工方案确定的需设置横向斜撑位置和数量;
b 根据已知的步距,立杆横距可以计算出每根横向斜撑的长度;
c 再根据脚手架高度计算出横向斜撑的数量。
6、连墙件钢管用量计算
(1)规范关于连墙件的规定:
a 定义:连接脚手架与建筑物的构件。
b 连墙件布置最大间距

c 一字型、开口型脚手架的两端必须设置连墙件,连墙件的垂直间距不应大于建筑物的层高,并不应大于4m。
(2)连墙件钢管用量的计算可根据施工方案确定的间距进行计算。(具体内容略)
7、防护栏杆的计算
(1)外墙脚手架外侧介于上下两个纵向水平杆之间的,用于作业层防护作用的纵向水平杆。
(2)防护栏杆的长度同大横杆(纵向水平杆)的长度。
(3)防护栏杆的根数=脚手架高度÷步距(上下水平轴线间的距离)
(4)防护栏杆的总量=防护栏杆的长度×防护栏杆的根数

8、脚手板底纵向水平杆(纵向水平杆的一种)
(1)定义:设置于竹笆脚手板下方用于支撑竹笆脚手板的纵向水平杆。
(2)规范相关规定:当使用冲压钢脚手板、木脚手板、竹串片脚手板时,纵向水平杆(大横杆)应作为横向水平杆的支撑,用直角扣年固定在立杆上;当使用竹笆脚手板时,纵向水平杆应采用直角扣件固定在横向水平杆上,并应等间距设置,间距不应大于400mm。
(3)脚手板底纵向水平杆的用量计算:长度同纵向水平杆长度,根数应根据施工方案确定需满铺脚手板的层数进行计算(计算过程略)
以上内容来源于网络收集整理,如有侵权请联系客服