文章来源:建筑工程鲁班联盟
地下室后浇带、施工缝等处是防水薄弱点,止水钢板的安装质量尤为重要。但是,转角处往往钢筋较密、空间狭小,不宜操作,施工难度大,导致渗漏水质量通病频发。为此,中建八局二公司在项目中采用工厂预制成品止水钢板转角,代替传统止水钢板转角现场焊接,方便施工、不渗不漏!

转角处钢筋较密不宜施工

转角处止水钢板焊接通病
成品止水钢板转角工艺
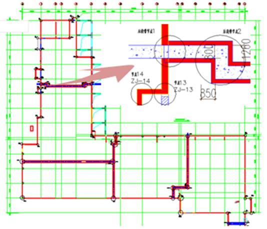
1、根据设计图纸在转角位置用填充色标出止水钢板位置,并为止水钢板转角节点编号。

标出止水钢板位置并编号
2、统计成品止水钢板类型(阴角、阳角、平面转立面)数量,绘制转角处止水钢板大样图及加工效果图,编制转角止水钢板工厂化加工下料单。

止水钢板工厂化加工下料单

转角处止水钢板大样图

转角处止水钢板加工效果图
3、工厂首件产品验收通过后,转角处成品止水钢板大批量下料加工制作,进场验收、安装。

工厂首件产品验收


止水钢板进场验收


成品止水钢板转角效果
以上内容来源于网络收集整理,如有侵权请联系客服